川崎市高津区北見方3丁目 中古住宅の物件詳細
| 販売価格 | 所在地/交通 | 土地面積/間取 |
|---|---|---|
| 4,298万円(税込) | 川崎市高津区北見方3丁目 |
75.35m²(22.79坪) 4LDK |
【川崎市高津区北見方3丁目の中古住宅の物件概要】
| 所在地 | 川崎市高津区北見方3丁目 | ||
|---|---|---|---|
| 交通 | 南武線「武蔵新城駅」 徒歩17分 | ||
| 交通2 | 東急田園都市線「高津駅」 徒歩20分 | ||
| 交通3 | 東急大井町線「二子新地駅」 徒歩22分 | ||
| 総戸数 | 販売戸数 | ||
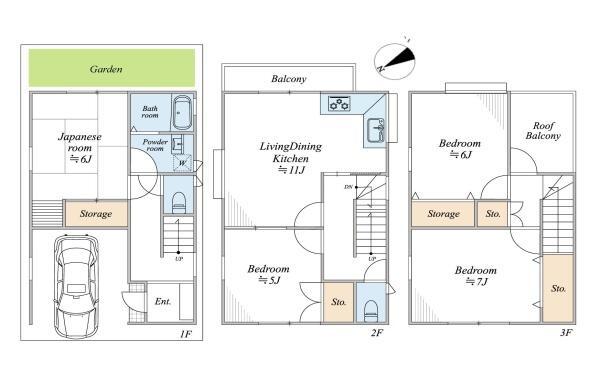
| 土地面積 | 75.35m²(22.79坪) | 建物面積 | 100.6m²(30.43坪) |
| 間取り | 4LDK | 建物構造 | 木造3階建て |
| 間取詳細 | |||
| リフォーム年月 | |||
| リフォーム内容 | |||
| 築年月 | 1996年2月築 | 用途地域 | 第一種住居地域 |
| 私道面積 | 接道状況 | 一方 北西5.6m |
|
| 容積率 | 200% | 建ぺい率 | 60% |
| 駐車場 | あり | 現況 | 空家 |
| 引渡時期 | 相談 | 土地権利 | 所有権 |
| 小学校区 | 川崎市立坂戸小学校、川崎市立東高津小学校 距離:800 m | 中学校区 | 川崎市立東高津中学校 距離:950 m |
| 設備 | 都市ガス 、公営水道 、排水(下水) | ||
| 取引態様 | 媒介 | 物件番号 | 211749997001 |
| 備考 | リフォーム:サッシ・建具調整、網戸張替、カーテンレール交換、ダウンライト設置、畳表替、ハウスクリーニング等 2沿線以上利用可;階建 3階建以上;和室;上水道 公営;汚水 下水道;ガス 都市ガス;フローリング;ビルトインガレージ;ダウンライト;全居室収納;収納スペース;クローゼット;シューズボックス;システムキッチン;ガスコンロ;コンロ口数 三口;独立洗面台;浴室に窓;トイレ2ヶ所;バルコニー バルコニー有;火災警報器(報知機);リフォーム 内外装リフォーム済;小学校 徒歩10分以内物件シート備考:建物面積に車庫面積8.7平米含む 備考_300文字:建物面積に車庫面積8.7平米含む コピー元備考:建物面積に車庫面積8.7平米含む | ||
| 特記事項 | |||
お支払い例この物件を購入した場合の月々の支払い価格の一例です。
4,298万円
0万円
0円
円
※元利金等方式 金利0.975%の場合 ※返済年数35年として算出しています。
※金融機関の審査によりご利用頂けない場合もあります。詳しくは担当までお尋ね下さい。
この物件についてのお問い合わせはこちらから!
すぐに知りたい方はお電話でTel.0120-53-5555 営業時間9:30~20:30 毎週水曜、第1・3火曜定休
周辺環境
この物件についてのお問い合わせはこちらから!
すぐに知りたい方はお電話でTel.0120-53-5555 営業時間9:30?20:30 毎週水曜、第1・3火曜定休
「川崎市高津区」「武蔵新城駅」の条件で他の物件を探す
現在の掲載物件数
総物件数9,780件
一般公開1,624件 会員限定8,156件
| 新築一戸建て | 2,117件 |
|---|---|
| 中古一戸建て | 3,126件 |
| 土地 | 224件 |
| マンション | 4,313件 |
| 投資・事業用 | 0件 |
現地販売会のお知らせ














