川崎市川崎区小田3丁目 新築一戸建ての物件詳細
| 販売価格 | 所在地/交通 | 土地面積/間取 |
|---|---|---|
| 6,880万円(税込) | 川崎市川崎区小田3丁目 |
84.3m²(25.50坪) 2SLDK |
【川崎市川崎区小田3丁目の新築一戸建ての物件概要】
| 所在地 | 川崎市川崎区小田3丁目 | ||
|---|---|---|---|
| 交通 | 南武線「小田栄駅」 徒歩3分 | ||
| 交通2 | 南武線「川崎新町駅」 徒歩12分 | ||
| 交通3 | 南武線「浜川崎駅」 徒歩18分 | ||
| 総戸数 | 販売戸数 | ||
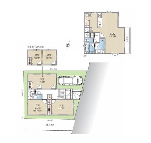
| 土地面積 | 84.3m²(25.50坪) | 建物面積 | 94.43m²(28.57坪) |
| 間取り | 2SLDK | 建物構造 | 木造2階建て |
| 間取詳細 | |||
| 築年月 | 2026年8月築 | 用途地域 | 第二種住居地域 |
| 私道面積 | 1.58m² | 接道状況 | 一方 東4m |
| 容積率 | 160% | 建ぺい率 | 60% |
| 駐車場 | あり | 現況 | 建築中 |
| 引渡時期 | 相談 | 土地権利 | 所有権 |
| 小学校区 | 川崎市立東小田小学校 | 中学校区 | 川崎市立田島中学校 |
| 設備 | 都市ガス 、公営水道 | 建築確認番号 | 第25UDI1T建04020号 |
| 取引態様 | 媒介 | 物件番号 | 111750017001 |
| 備考 | 地盤調査書有;階建 2階建;LDK広さ 18帖以上;全居室6帖以上;上水道 公営;ガス 都市ガス;フローリング;複層ガラス;24時間換気システム;納戸;クローゼット;シューズボックス;システムキッチン;ガスコンロ;コンロ口数 三口;パントリー;浄水器;独立洗面台;シャンプードレッサー;オートバス;追い焚き;浴室乾燥機;トイレ2ヶ所;温水洗浄便座;バルコニー バルコニー有;全居室複層ガラス;TVインターホン;火災警報器(報知機)物件シート備考:カースペース有(車種による) 備考_300文字:カースペース有(車種による) コピー元備考:カースペース有(車種による) | ||
| 特記事項 | |||
お支払い例この物件を購入した場合の月々の支払い価格の一例です。
6,880万円
0万円
0円
円
※元利金等方式 金利0.975%の場合 ※返済年数35年として算出しています。
※金融機関の審査によりご利用頂けない場合もあります。詳しくは担当までお尋ね下さい。
この物件についてのお問い合わせはこちらから!
すぐに知りたい方はお電話でTel.0120-53-5555 営業時間9:30~20:30 毎週水曜、第1・3火曜定休
周辺環境
この物件についてのお問い合わせはこちらから!
すぐに知りたい方はお電話でTel.0120-53-5555 営業時間9:30?20:30 毎週水曜、第1・3火曜定休
「川崎市川崎区」「小田栄駅」の条件で他の物件を探す
現在の掲載物件数
総物件数9,780件
一般公開1,486件 会員限定8,294件
| 新築一戸建て | 2,117件 |
|---|---|
| 中古一戸建て | 3,126件 |
| 土地 | 224件 |
| マンション | 4,313件 |
| 投資・事業用 | 0件 |
現地販売会のお知らせ














